Cumberland County
Building Summary

Data last updated on: 2/1/2026     Ownership current as of: 1/20/2026     Tax Year: 2026
REID 0405480895000

PIN # 0405-48-0895

Location Address Property Description
5926 LAKERIDGE DR ARRAN LAKE WEST LO:13 SE:01 PL:0045-0049
   
Property Owner Owner's Mailing Address
BROWN, TRISTEN JAMES;HARTLEY, KRYSTAL ANGEL
5926 LAKERIDGE DR
FAYETTEVILLE NC 28304
Parcel
Buildings
Misc Improvements
Land
Deeds
Documents
Notes
Sales
Sales Comparison
Photos
Building Location Address
5926 LAKERIDGE DR
Building Description
R1-SINGLE-FAMILY-RES
Card   of  1
Bldg Type R1-SINGLE-FAMILY-RES
Units 0
Living Area (SQFT) 1871
Number of Stories 1.75
Style 000002-STYLE
Foundation C-COMBO/SLAB/CSP
Frame CONSTANT
Exterior 12-BRICK/WOOD
Const Type
Heating M-07&S-01
Air Cond AC-Y
Plumbing Baths (Full):   2
Baths (Half):   1
Extra Fixtures:   0
Total Plumbing Fixtures:   8 
Bedrooms 3
Floor 11-CARPET-COMB
Roof Cover 03-COMP SHINGLE
Roof Type 03-MANSARD
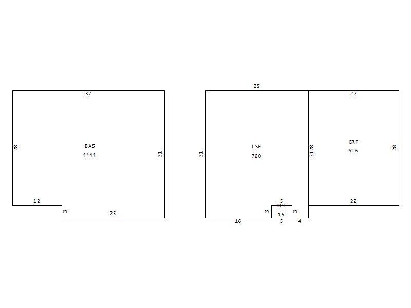
Main Body (SQFT) 1111
Year Built 1980
Additions 3
Effective Year 1980
Remodeled 0
Interior Adj.
Other Features
Building Total & Improvement Details

Grade 350 100%
Percentage Complete 100
Total Adjusted Replacement Cost New $225,595
Physical Depreciation (% Bad) A 30%
Depreciated Value $157,916
Economic Depreciation (% Bad) 0
Functional Depreciation (% Bad) 0
Total Depreciated Value $157,916
Market Area Factor 1.00
Building Value $157,916
Misc Improvements Value $515
Total Improvement Value $158,431

Assessed Land Value $35,000
   
Assessed Total Value $267,100



Addition Summary 
StoryTypeCodeArea
1.00 LOWER STY FIN LSF 760
1.00 OPEN PORCH FIN OPF 15
1.00 GARAGE FINISH GRF 616
 
Other Improvements 
UnitsDescriptionItemCodeYear% BadValue
12x16 DIMENSIONS CONCRETE PATIO 1983 65 515
 


Building Sketch
Photograph
Building Sketch Building Photo
(Click sketch for bigger image)