Cumberland County
Building Summary

Data last updated on: 5/22/2026     Ownership current as of: 5/1/2026     Tax Year: 2026
REID 0428087597000

PIN # 0428-08-7597

Location Address Property Description
1821 EICHELBERGER DR GREEN VALLEY ESTATES PT 3 LO:64 SE:1 PL:0044-0033
   
Property Owner Owner's Mailing Address
MCMILLIAN, HARRY;MCMILLIAN, JOYCE
1821 EICHELBERGER DR
FAYETTEVILLE NC 28303
Parcel
Buildings
Misc Improvements
Land
Deeds
Documents
Notes
Sales
Sales Comparison
Photos
Building Location Address
1821 EICHELBERGER DR
Building Description
R1-SINGLE-FAMILY-RES
Card   of  1
Bldg Type R1-SINGLE-FAMILY-RES
Units 0
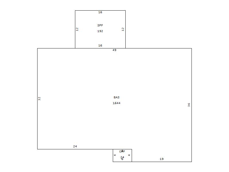
Living Area (SQFT) 1644
Number of Stories 1.00
Style 000002-STYLE
Foundation G-PIERS-W/CNTFWL
Frame CONSTANT
Exterior 04-VINYL-SIDING
Const Type
Heating M-07&S-01
Air Cond AC-Y
Plumbing Baths (Full):   1
Baths (Half):   1
Extra Fixtures:   0
Total Plumbing Fixtures:   5 
Bedrooms 3
Floor 11-CARPET-COMB
Roof Cover 03-COMP SHINGLE
Roof Type 02-GABLE
Main Body (SQFT) 1644
Year Built 1977
Additions 2
Effective Year 1977
Remodeled 0
Interior Adj.
Other Features
Building Total & Improvement Details

Grade 350 100%
Percentage Complete 100
Total Adjusted Replacement Cost New $183,227
Physical Depreciation (% Bad) A 32%
Depreciated Value $124,594
Economic Depreciation (% Bad) 0
Functional Depreciation (% Bad) 0
Total Depreciated Value $124,594
Market Area Factor 1.00
Building Value $124,594
Misc Improvements Value $2,815
Total Improvement Value $127,409

Assessed Land Value $30,000
   
Assessed Total Value $213,000



Addition Summary 
StoryTypeCodeArea
1.00 OPEN PORCH FIN OPF 24
1.00 SCREEN PORCH F SPF 192
 
Other Improvements 
UnitsDescriptionItemCodeYear% BadValue
12X10 DIMENSIONS UTILITY FRAME 2017 27 2815
 


Building Sketch
Photograph
Building Sketch Building Photo
(Click sketch for bigger image)