Cumberland County
Building Summary

Data last updated on: 1/20/2026     Ownership current as of: 1/20/2026     Tax Year: 2026
REID 0428181589000

PIN # 0428-18-1589

Location Address Property Description
1810 EICHELBERGER DR GREEN VALLEY ESTATES LO:96 SE:4-PT3 PL:0044-0033
   
Property Owner Owner's Mailing Address
HARRIS, OBEGHAENRE;HARRIS, JENIFER
1810 EICHELBERGER DRIVE
FAYETTEVILLE NC 28303
Parcel
Buildings
Misc Improvements
Land
Deeds
Documents
Notes
Sales
Sales Comparison
Photos
Building Location Address
1810 EICHELBERGER DR
Building Description
R1-SINGLE-FAMILY-RES
Card   of  1
Bldg Type R1-SINGLE-FAMILY-RES
Units 0
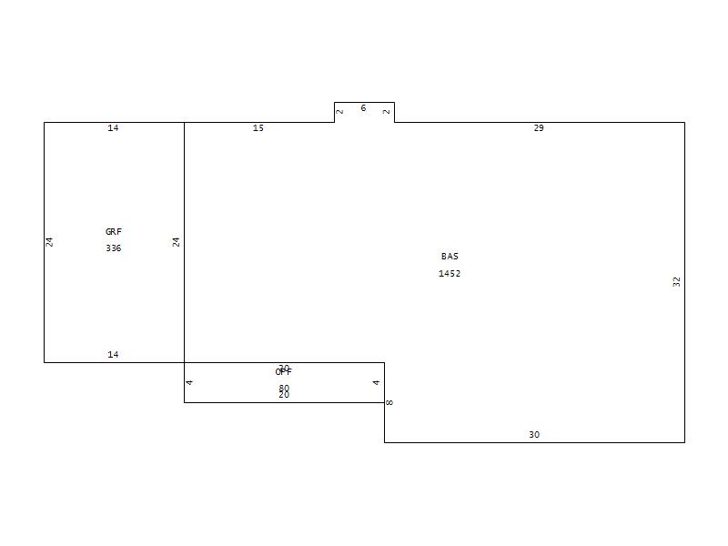
Living Area (SQFT) 1452
Number of Stories 1.00
Style 000002-STYLE
Foundation G-PIERS-W/CNTFWL
Frame CONSTANT
Exterior 12-BRICK/WOOD
Const Type
Heating M-07&S-01
Air Cond AC-Y
Plumbing Baths (Full):   2
Baths (Half):   0
Extra Fixtures:   0
Total Plumbing Fixtures:   6 
Bedrooms 4
Floor 12-CARPET
Roof Cover 03-COMP SHINGLE
Roof Type 02-GABLE
Main Body (SQFT) 1452
Year Built 1984
Additions 2
Effective Year 1984
Remodeled 0
Interior Adj.
Other Features
Building Total & Improvement Details

Grade 350 100%
Percentage Complete 100
Total Adjusted Replacement Cost New $176,694
Physical Depreciation (% Bad) A 28%
Depreciated Value $127,220
Economic Depreciation (% Bad) 0
Functional Depreciation (% Bad) 0
Total Depreciated Value $127,220
Market Area Factor 1.00
Building Value $127,220
Misc Improvements Value $387
Total Improvement Value $127,607

Assessed Land Value $30,000
   
Assessed Total Value $220,800



Addition Summary 
StoryTypeCodeArea
1.00 GARAGE FINISH GRF 336
1.00 OPEN PORCH FIN OPF 80
 
Other Improvements 
UnitsDescriptionItemCodeYear% BadValue
12x12 DIMENSIONS CONCRETE PATIO 1983 65 387
 


Building Sketch
Photograph
Building Sketch Building Photo
(Click sketch for bigger image)