Cumberland County
Building Summary

Data last updated on: 4/30/2026     Ownership current as of: 4/22/2026     Tax Year: 2026
REID 0429008686000

PIN # 0429-00-8686

Location Address Property Description
1520 MAGGIE ST MINTZ ESTATES LO:9 SE:03 BL:F PL:0030-0045
   
Property Owner Owner's Mailing Address
BOUJAAFAR, FAIZA;EASTWOOD, JOSHUA A
6518 WALDOS BEACH RD
FAYETTEVILLE NC 28306
Parcel
Buildings
Misc Improvements
Land
Deeds
Documents
Notes
Sales
Sales Comparison
Photos
Building Location Address
1520 MAGGIE ST
Building Description
R1-SINGLE-FAMILY-RES
Card   of  1
Bldg Type R1-SINGLE-FAMILY-RES
Units 0
Living Area (SQFT) 1710
Number of Stories 1.00
Style 000002-STYLE
Foundation G-PIERS-W/CNTFWL
Frame CONSTANT
Exterior 11-BRICK-VENEER
Const Type
Heating M-07&S-01
Air Cond AC-Y
Plumbing Baths (Full):   2
Baths (Half):   0
Extra Fixtures:   0
Total Plumbing Fixtures:   6 
Bedrooms 3
Floor 11-CARPET-COMB
Roof Cover 03-COMP SHINGLE
Roof Type 02-GABLE
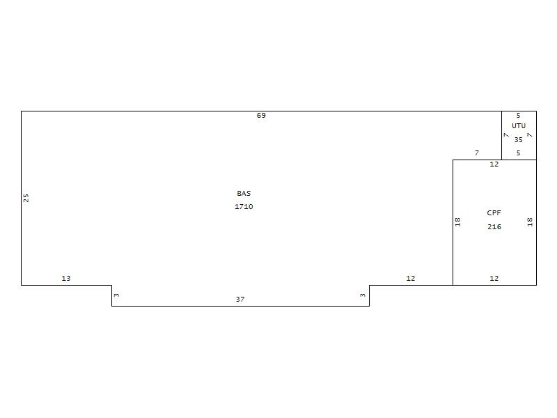
Main Body (SQFT) 1710
Year Built 1973
Additions 2
Effective Year 1973
Remodeled 0
Interior Adj.
Other Features
Building Total & Improvement Details

Grade 350 100%
Percentage Complete 100
Total Adjusted Replacement Cost New $194,832
Physical Depreciation (% Bad) A 33%
Depreciated Value $130,537
Economic Depreciation (% Bad) 0
Functional Depreciation (% Bad) 0
Total Depreciated Value $130,537
Market Area Factor 1.00
Building Value $130,537
Misc Improvements Value $839
Total Improvement Value $131,376

Assessed Land Value $32,000
   
Assessed Total Value $224,300



Addition Summary 
StoryTypeCodeArea
1.00 CARPORT FINISH CPF 216
1.00 UTILITY UNFIN UTU 35
 
Other Improvements 
UnitsDescriptionItemCodeYear% BadValue
4x6 DIMENSIONS STOOP 1983 65 131
12x20 DIMENSIONS CONCRETE PATIO 1983 65 644
6x6 DIMENSIONS UTILITY METAL 1983 65 64
 


Building Sketch
Photograph
Building Sketch Building Photo
(Click sketch for bigger image)