Cumberland County
Building Summary

Data last updated on: 12/2/2025     Ownership current as of: 11/19/2025     Tax Year: 2025
REID 0429101018000

PIN # 0429-10-1018

Location Address Property Description
1515 NICKLAUS DR GREEN VALLEY ESTATES PT 2 LO:34 SE:01 PL:0033-0038
   
Property Owner Owner's Mailing Address
KHABEER, JAMEL
1515 NICKLAUS DR
FAYETTEVILLE NC 28303
Parcel
Buildings
Misc Improvements
Land
Deeds
Documents
Notes
Sales
Sales Comparison
Photos
Building Location Address
1515 NICKLAUS DR
Building Description
R1-SINGLE-FAMILY-RES
Card   of  1
Bldg Type R1-SINGLE-FAMILY-RES
Units 0
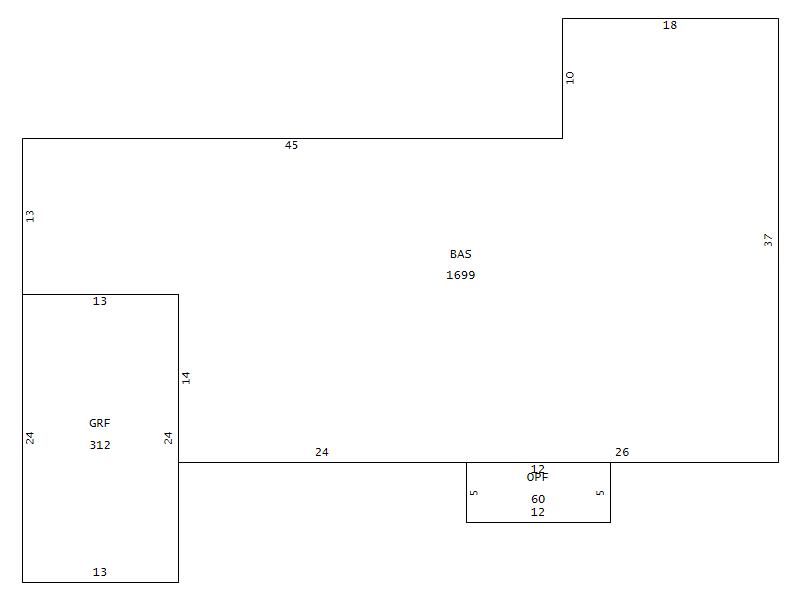
Living Area (SQFT) 1699
Number of Stories 1.00
Style 000002-STYLE
Foundation G-PIERS-W/CNTFWL
Frame CONSTANT
Exterior 11-BRICK-VENEER
Const Type
Heating M-07&S-01
Air Cond AC-Y
Plumbing Baths (Full):   2
Baths (Half):   0
Extra Fixtures:   1
Total Plumbing Fixtures:   7 
Bedrooms 3
Floor 11-CARPET-COMB
Roof Cover 03-COMP SHINGLE
Roof Type 02-GABLE
Main Body (SQFT) 1699
Year Built 1972
Additions 2
Effective Year 1972
Remodeled 0
Interior Adj.
Other Features
Building Total & Improvement Details

Grade 350 100%
Percentage Complete 100
Total Adjusted Replacement Cost New $205,863
Physical Depreciation (% Bad) A 34%
Depreciated Value $135,870
Economic Depreciation (% Bad) 0
Functional Depreciation (% Bad) 0
Total Depreciated Value $135,870
Market Area Factor 1.00
Building Value $135,870
Misc Improvements Value $859
Total Improvement Value $136,729

Assessed Land Value $30,000
   
Assessed Total Value $239,700



Addition Summary 
StoryTypeCodeArea
1.00 GARAGE FINISH GRF 312
1.00 OPEN PORCH FIN OPF 60
 
Other Improvements 
UnitsDescriptionItemCodeYear% BadValue
16x20 DIMENSIONS CONCRETE PATIO 1983 65 859
 


Building Sketch
Photograph
Building Sketch Building Photo
(Click sketch for bigger image)