Cumberland County
Building Summary

Data last updated on: 5/22/2026     Ownership current as of: 5/1/2026     Tax Year: 2026
REID 0429103160000

PIN # 0429-10-3160

Location Address Property Description
1520 NICKLAUS DR GREEN VALLEY ESTATES LO:43 SE:1-PT2 PL:0033-0038
   
Property Owner Owner's Mailing Address
SKY REI LLC
9105 TRIANA MARKET WALK
RALEIGH NC 27617
Parcel
Buildings
Misc Improvements
Land
Deeds
Documents
Notes
Sales
Sales Comparison
Photos
Building Location Address
1520 NICKLAUS DR
Building Description
R1-SINGLE-FAMILY-RES
Card   of  1
Bldg Type R1-SINGLE-FAMILY-RES
Units 0
Living Area (SQFT) 1777
Number of Stories 1.00
Style 000002-STYLE
Foundation G-PIERS-W/CNTFWL
Frame CONSTANT
Exterior 12-BRICK/WOOD
Const Type
Heating M-07&S-01
Air Cond AC-Y
Plumbing Baths (Full):   2
Baths (Half):   0
Extra Fixtures:   0
Total Plumbing Fixtures:   6 
Bedrooms 3
Floor 11-CARPET-COMB
Roof Cover 03-COMP SHINGLE
Roof Type 02-GABLE
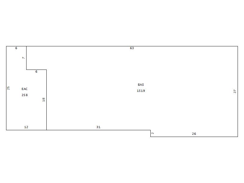
Main Body (SQFT) 1519
Year Built 1971
Additions 1
Effective Year 1971
Remodeled 0
Interior Adj.
Other Features
Building Total & Improvement Details

Grade 350 100%
Percentage Complete 100
Total Adjusted Replacement Cost New $183,344
Physical Depreciation (% Bad) A 34%
Depreciated Value $121,007
Economic Depreciation (% Bad) 0
Functional Depreciation (% Bad) 0
Total Depreciated Value $121,007
Market Area Factor 1.00
Building Value $121,007
Misc Improvements Value $2,092
Total Improvement Value $123,099

Assessed Land Value $30,000
   
Assessed Total Value $238,600



Addition Summary 
StoryTypeCodeArea
1.00 ENCL AREA AVER EAC 258
 
Other Improvements 
UnitsDescriptionItemCodeYear% BadValue
12x15 DIMENSIONS CONCRETE PATIO 1983 65 483
10x10 DIMENSIONS UTILITY FRAME 1983 65 1417
7x4 DIMENSIONS STOOP 1983 65 192
 


Building Sketch
Photograph
Building Sketch Building Photo
(Click sketch for bigger image)