Cumberland County
Building Summary

Data last updated on: 1/7/2026     Ownership current as of: 1/7/2026     Tax Year: 2026
REID 0432826430000

PIN # 0432-82-6430

Location Address Property Description
2671 CYPRESS LAKES RD MARKETPLACE BUILDERS INC LO:1 SE:01 PL:0142-0024
   
Property Owner Owner's Mailing Address
EVANS, VELDESTA B
2671 CYPRESS LAKES ROAD
HOPE MILLS NC 28348
Parcel
Buildings
Misc Improvements
Land
Deeds
Documents
Notes
Sales
Sales Comparison
Photos
Building Location Address
2671 CYPRESS LAKES RD
Building Description
R1-SINGLE-FAMILY-RES
Card   of  1
Bldg Type R1-SINGLE-FAMILY-RES
Units 0
Living Area (SQFT) 2513
Number of Stories 2.00
Style 000088-STYLE
Foundation S-SLAB
Frame CONSTANT
Exterior 04-VINYL-SIDING
Const Type
Heating M-07&S-02
Air Cond AC-Y
Plumbing Baths (Full):   2
Baths (Half):   1
Extra Fixtures:   3
Total Plumbing Fixtures:   11 
Bedrooms 5
Roof Cover 03-COMP SHINGLE
Roof Type 02-GABLE
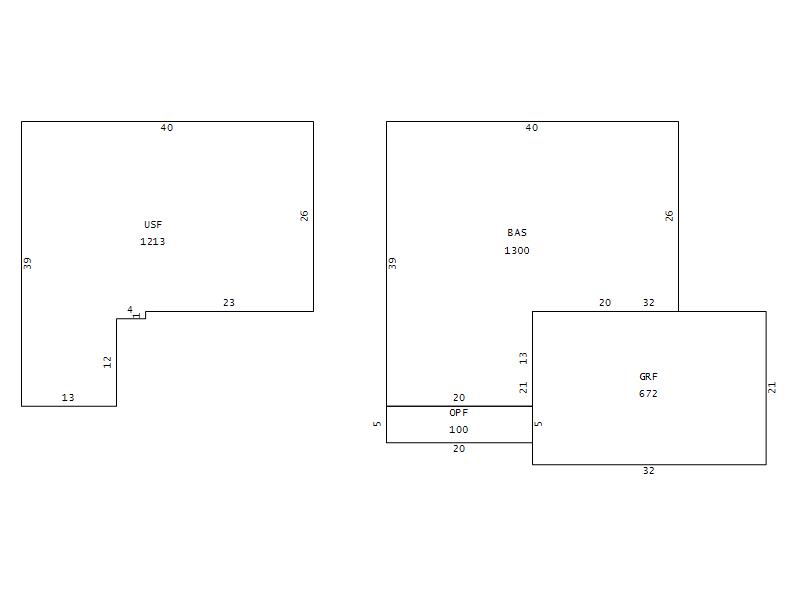
Main Body (SQFT) 1300
Year Built 2019
Additions 3
Effective Year 2019
Remodeled 0
Interior Adj.
Other Features
Building Total & Improvement Details

Grade 435 117%
Percentage Complete 100
Total Adjusted Replacement Cost New $328,875
Physical Depreciation (% Bad) G 4%
Depreciated Value $315,720
Economic Depreciation (% Bad) 0
Functional Depreciation (% Bad) 0
Total Depreciated Value $315,720
Market Area Factor 1.00
Building Value $315,720
Misc Improvements Value $806
Total Improvement Value $316,526

Assessed Land Value $15,000
   
Assessed Total Value $392,700



Addition Summary 
StoryTypeCodeArea
1.00 OPEN PORCH FIN OPF 100
1.00 GARAGE FINISH GRF 672
1.00 UPPER STY FIN USF 1213
 
Other Improvements 
UnitsDescriptionItemCodeYear% BadValue
12x12 DIMENSIONS CONCRETE PATIO 2019 27 806
 


Building Sketch
Photograph
Building Sketch Building Photo
(Click sketch for bigger image)