Cumberland County
Building Summary

Data last updated on: 5/18/2026     Ownership current as of: 4/30/2026     Tax Year: 2026
REID 0437449837000

PIN # 0437-44-9837

Location Address Property Description
450 HAY ST 450 HAY LLC RECOMB LO:1 SE:01 PL:0130-0152
   
Property Owner Owner's Mailing Address
PRINCE CHARLES HOLDINGS LLC
PO BOX 650
DURHAM NC 27702
Parcel
Buildings
Misc Improvements
Land
Income
Deeds
Documents
Notes
Sales
Photos
Building Location Address
450 HAY ST
Card   of  2        Section   of  4
Building Details

Building Name
Primary Occupancy Type COMMERCIAL
Primary Occupancy APT-APARTMENT
Primary Class B-REINFORCED-CONCRTE
Primary Quality B
Year Built 1924
Effective Year 2008
Physical Depreciation (Rating) AVERAGE
Physical Depreciation (% Bad) 23.00
Economic Depreciation (% Bad)
Functional Depreciation (% Bad)
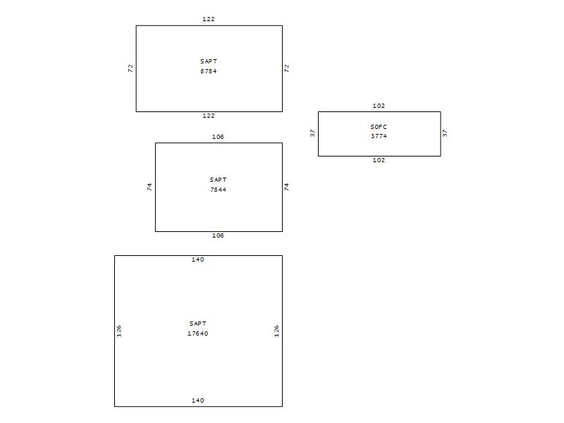
Gross Leasable Area (SQFT) 73178
Remodeled Year 2018
Total Stories 8

Section Details

Occupancy Type COMMERCIAL


Exterior Walls 10-BRK-VEN/CON-BLOCK
Exterior Walls 27-STONE-MASONARY
Sprinkler Y
Quality B
Occupancy APT-APARTMENT
Interior Finish APT-APARTMENT
Interior Finish RTC-RETAIL-STORE-AVG
E15-ELEVATOR 2
ELEVATORS 2
ELV LANDINGS 8
Depreciation 23%
Depreciation AVERAGE
Class B-REINFORCED-CONCRTE
2-FIX-BATHS 1
3-FIX-BATHS 84
12
Building Total & Improvement Details

Total Adjusted Replacement Cost New $10,602,505
Physical Depreciation (% Bad) AVERAGE 23.00
Depreciated Value $8,163,928
Economic Depreciation (% Bad) 0
Functional Depreciation (% Bad) 0
Total Depreciated Value $8,163,928
Market Area Factor 1.00
Building Value $8,163,928
Misc Improvements Value $7,863
Total Improvement Value $8,171,791

Assessed Land Value $108,000
   
Assessed Total Value $4,241,550


Addition Summary 
 
Other Improvements 
UnitsDescriptionItemCodeYear% BadValue
4400 SIZE ASPHALT PAVING W/CONCRETE CURBING 1990 65 6145
325 SIZE SIDEWALK 1990 65 644
1700 SIZE CONCRETE PATIO 1990 65 4564
31x8 DIMENSIONS BRICK PATIO 1990 65 1645
60 SIZE FENCE METAL/IN 1990 65 842
35 SIZE CL FENCE 1990 65 140
26005 SIZE IMPERVIOUS ARE 2020 0
 


Building Sketch
Photograph
Building Sketch Building Photo
(Click sketch for bigger image)