Cumberland County
Building Summary

Data last updated on: 2/1/2026     Ownership current as of: 1/20/2026     Tax Year: 2026
REID 0406000513000

PIN # 0406-00-0513

Location Address Property Description
6373 LAKE TRAIL DR ARRAN LAKES WEST LO:778 SE:10 PL:0060-0085
   
Property Owner Owner's Mailing Address
HENDRIX, WILLIAM
6373 LAKE TRAIL DR
FAYETTEVILLE NC 28304
Parcel
Buildings
Misc Improvements
Land
Deeds
Documents
Notes
Sales
Sales Comparison
Photos
Building Location Address
6373 LAKE TRAIL DR
Building Description
R1-SINGLE-FAMILY-RES
Card   of  1
Bldg Type R1-SINGLE-FAMILY-RES
Units 0
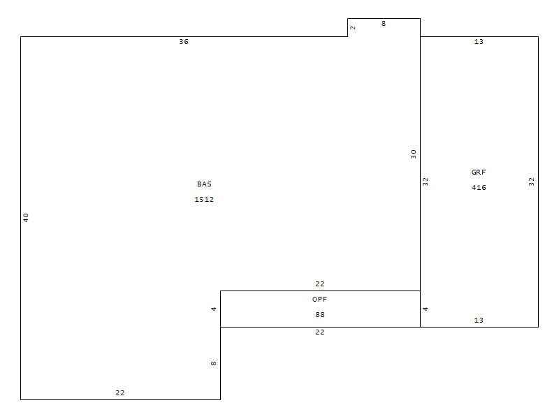
Living Area (SQFT) 1512
Number of Stories 1.00
Style 000002-STYLE
Foundation G-PIERS-W/CNTFWL
Frame CONSTANT
Exterior 12-BRICK/WOOD
Const Type
Heating M-07&S-01
Air Cond AC-Y
Plumbing Baths (Full):   2
Baths (Half):   0
Extra Fixtures:   0
Total Plumbing Fixtures:   6 
Bedrooms 3
Floor 11-CARPET-COMB
Roof Cover 03-COMP SHINGLE
Roof Type 02-GABLE
Main Body (SQFT) 1512
Year Built 1986
Additions 2
Effective Year 1986
Remodeled 0
Interior Adj.
Other Features
Building Total & Improvement Details

Grade 350 100%
Percentage Complete 100
Total Adjusted Replacement Cost New $184,976
Physical Depreciation (% Bad) A 27%
Depreciated Value $135,032
Economic Depreciation (% Bad) 0
Functional Depreciation (% Bad) 0
Total Depreciated Value $135,032
Market Area Factor 1.00
Building Value $135,032
Misc Improvements Value $451
Total Improvement Value $135,483

Assessed Land Value $35,000
   
Assessed Total Value $240,500



Addition Summary 
StoryTypeCodeArea
1.00 OPEN PORCH FIN OPF 88
1.00 GARAGE FINISH GRF 416
 
Other Improvements 
UnitsDescriptionItemCodeYear% BadValue
12x14 DIMENSIONS CONCRETE PATIO 1986 65 451
 


Building Sketch
Photograph
Building Sketch Building Photo
(Click sketch for bigger image)