Cumberland County
Building Summary

Data last updated on: 4/7/2026     Ownership current as of: 3/26/2026     Tax Year: 2026
REID 0437647037000

PIN # 0437-64-7037

Location Address Property Description
128 BOW ST LT 33X26 (0.02 AC)
   
Property Owner Owner's Mailing Address
EIBERGER LLC
128 D BOW STREET
FAYETTEVILLE NC 28301
Parcel
Buildings
Misc Improvements
Land
Deeds
Documents
Notes
Sales
Photos
Building Location Address
128 BOW ST
Card   of  1        Section   of  2
Building Details

Building Name
Primary Occupancy Type COMMERCIAL
Primary Occupancy PSC-PERSONAL-SERVICE
Primary Class C-CONCRT/MASONRY-WLS
Primary Quality C
Year Built 1900
Effective Year 1970
Physical Depreciation (Rating) AVERAGE
Physical Depreciation (% Bad) 63.00
Economic Depreciation (% Bad)
Functional Depreciation (% Bad)
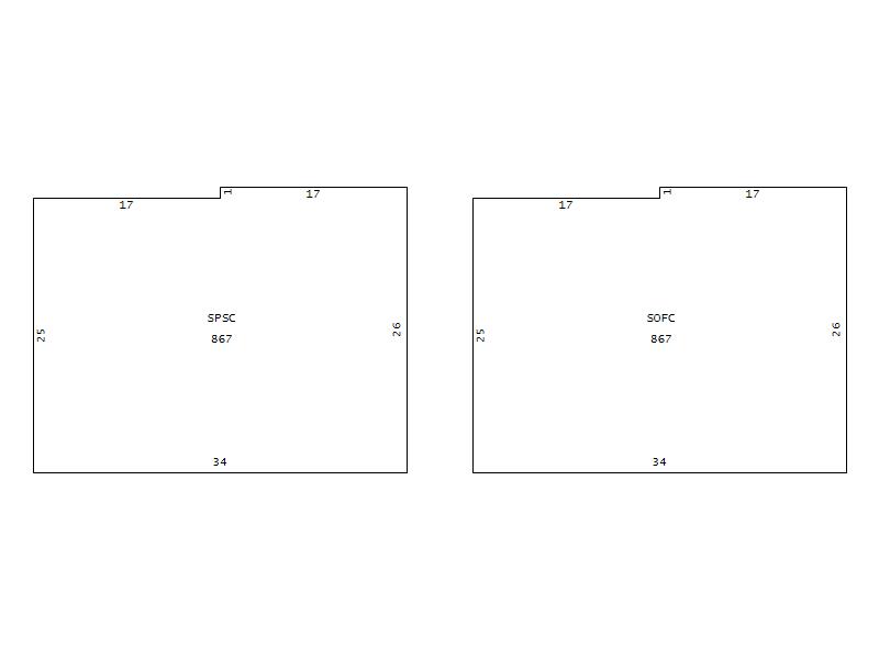
Gross Leasable Area (SQFT) 1734
Remodeled Year
Total Stories 1

Section Details

Occupancy Type COMMERCIAL


Air Conditioning Y
2-FIX-BATHS 1
Class C-CONCRT/MASONRY-WLS
Depreciation 63%
Depreciation AVERAGE
Interior Finish PSC-PERSONAL-SERVICE
Occupancy PSC-PERSONAL-SERVICE
Quality C
Sprinkler N
Exterior Walls 18-UNFIN/PARTY-WALL
Exterior Walls 23-BRK-REG-BRK-O-IND
Building Total & Improvement Details

Total Adjusted Replacement Cost New $217,669
Physical Depreciation (% Bad) AVERAGE 63.00
Depreciated Value $80,537
Economic Depreciation (% Bad) 0
Functional Depreciation (% Bad) 0
Total Depreciated Value $80,537
Market Area Factor 1.00
Building Value $80,537
Misc Improvements Value
Total Improvement Value $80,537

Assessed Land Value $46,287
   
Assessed Total Value $126,824


Addition Summary 
 
Other Improvements 
UnitsDescriptionItemCodeYear% BadValue
867 SIZE IMPERVIOUS ARE 2020 0
 


Building Sketch
Photograph
Building Sketch Building Photo
(Click sketch for bigger image)