Cumberland County
Building Summary

Data last updated on: 2/1/2026     Ownership current as of: 1/20/2026     Tax Year: 2026
REID 0406107159000

PIN # 0406-10-7159

Location Address Property Description
6196 LAKE TRAIL DR ARRAN LAKES WEST LO:481 SE:08 PL:0053-0006
   
Property Owner Owner's Mailing Address
SPEARS, JACKSON OWEN
6196 LAKE TRAIL DRIVE
FAYETTEVILLE NC 28304
Parcel
Buildings
Misc Improvements
Land
Deeds
Documents
Notes
Sales
Sales Comparison
Photos
Building Location Address
6196 LAKE TRAIL DR
Building Description
R1-SINGLE-FAMILY-RES
Card   of  1
Bldg Type R1-SINGLE-FAMILY-RES
Units 0
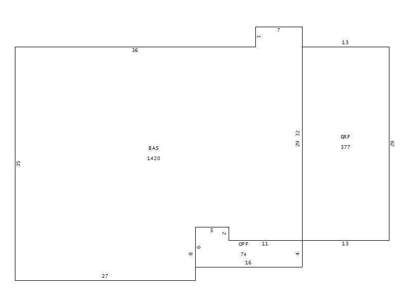
Living Area (SQFT) 1420
Number of Stories 1.00
Style 000002-STYLE
Foundation G-PIERS-W/CNTFWL
Frame CONSTANT
Exterior 11-BRICK-VENEER
Const Type
Heating M-07&S-02
Air Cond AC-Y
Plumbing Baths (Full):   2
Baths (Half):   0
Extra Fixtures:   0
Total Plumbing Fixtures:   6 
Bedrooms 3
Floor 11-CARPET-COMB
Roof Cover 03-COMP SHINGLE
Roof Type 02-GABLE
Main Body (SQFT) 1420
Year Built 1992
Additions 2
Effective Year 1992
Remodeled 0
Interior Adj.
Other Features
Building Total & Improvement Details

Grade 350 100%
Percentage Complete 100
Total Adjusted Replacement Cost New $180,474
Physical Depreciation (% Bad) A 25%
Depreciated Value $135,356
Economic Depreciation (% Bad) 0
Functional Depreciation (% Bad) 0
Total Depreciated Value $135,356
Market Area Factor 1.00
Building Value $135,356
Misc Improvements Value $387
Total Improvement Value $135,743

Assessed Land Value $35,000
   
Assessed Total Value $235,100



Addition Summary 
StoryTypeCodeArea
1.00 GARAGE FINISH GRF 377
1.00 OPEN PORCH FIN OPF 74
 
Other Improvements 
UnitsDescriptionItemCodeYear% BadValue
12x12 DIMENSIONS CONCRETE PATIO 1983 65 387
 


Building Sketch
Photograph
Building Sketch Building Photo
(Click sketch for bigger image)