Cumberland County
Building Summary

Data last updated on: 2/1/2026     Ownership current as of: 1/20/2026     Tax Year: 2026
REID 0406111164000

PIN # 0406-11-1164

Location Address Property Description
6230 LAKEHAVEN DR ARRAN LAKES WEST LO:605 SE:09 PL:0058-0042
   
Property Owner Owner's Mailing Address
RISPOLI, AMBER;MARROW, SHAMAR
6230 LAKEHAVEN DR
FAYETTEVILLE NC 28304
Parcel
Buildings
Misc Improvements
Land
Deeds
Documents
Notes
Sales
Sales Comparison
Photos
Building Location Address
6230 LAKEHAVEN DR
Building Description
R1-SINGLE-FAMILY-RES
Card   of  1
Bldg Type R1-SINGLE-FAMILY-RES
Units 0
Living Area (SQFT) 1826
Number of Stories 2.00
Style 000002-STYLE
Foundation G-PIERS-W/CNTFWL
Frame CONSTANT
Exterior 03-MAS/ABST/OLD-WOOD
Const Type
Heating M-07&S-01
Air Cond AC-Y
Plumbing Baths (Full):   2
Baths (Half):   1
Extra Fixtures:   0
Total Plumbing Fixtures:   8 
Bedrooms 3
Floor 11-CARPET-COMB
Roof Cover 03-COMP SHINGLE
Roof Type 02-GABLE
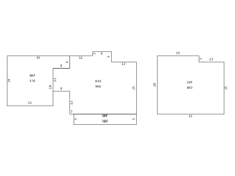
Main Body (SQFT) 966
Year Built 1986
Additions 3
Effective Year 1990
Remodeled 2013
Interior Adj.
Other Features
Building Total & Improvement Details

Grade 350 100%
Percentage Complete 100
Total Adjusted Replacement Cost New $218,141
Physical Depreciation (% Bad) A 25%
Depreciated Value $163,606
Economic Depreciation (% Bad) 0
Functional Depreciation (% Bad) 0
Total Depreciated Value $163,606
Market Area Factor 1.00
Building Value $163,606
Misc Improvements Value $523
Total Improvement Value $164,129

Assessed Land Value $35,000
   
Assessed Total Value $274,300



Addition Summary 
StoryTypeCodeArea
1.00 GARAGE FINISH GRF 576
1.00 OPEN PORCH FIN OPF 150
1.00 UPPER STY FIN USF 860
 
Other Improvements 
UnitsDescriptionItemCodeYear% BadValue
13x15 DIMENSIONS CONCRETE PATIO 1983 65 523
 


Building Sketch
Photograph
Building Sketch Building Photo
(Click sketch for bigger image)