Cumberland County
Building Summary

Data last updated on: 2/1/2026     Ownership current as of: 1/20/2026     Tax Year: 2026
REID 0406118971000

PIN # 0406-11-8971

Location Address Property Description
1886 WINDLOCK DR ARRAN LAKES WEST LO:646 SE:09 PL:0053-0007
   
Property Owner Owner's Mailing Address
CARUSO, FRED ANTHONY;CARUSO, WANDA ANNETTE
1886 WINDLOCK DRIVE
FAYETTEVILLE NC 28304

Value subject to change, property assessment under review

Parcel
Buildings
Misc Improvements
Land
Deeds
Documents
Notes
Sales
Photos
Building Location Address
1886 WINDLOCK DR
Building Description
R1-SINGLE-FAMILY-RES
Card   of  1
Bldg Type R1-SINGLE-FAMILY-RES
Units 0
Living Area (SQFT) 1442
Number of Stories 1.00
Style 000002-STYLE
Foundation G-PIERS-W/CNTFWL
Frame CONSTANT
Exterior 04-VINYL-SIDING
Const Type
Heating M-07&S-02
Air Cond AC-Y
Plumbing Baths (Full):   2
Baths (Half):   0
Extra Fixtures:   0
Total Plumbing Fixtures:   6 
Bedrooms 3
Floor 11-CARPET-COMB
Roof Cover 03-COMP SHINGLE
Roof Type 02-GABLE
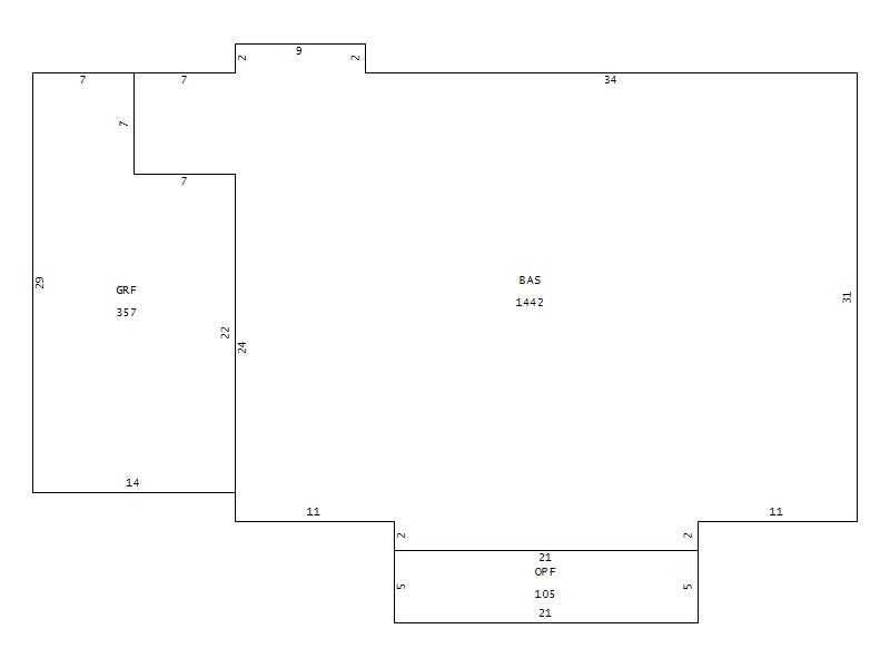
Main Body (SQFT) 1442
Year Built 1985
Additions 2
Effective Year 1985
Remodeled 0
Interior Adj.
Other Features
Building Total & Improvement Details

Grade 350 100%
Percentage Complete 100
Total Adjusted Replacement Cost New
Physical Depreciation (% Bad) F 43%
Depreciated Value
Economic Depreciation (% Bad) 0
Functional Depreciation (% Bad) 0
Total Depreciated Value
Market Area Factor 1.00
Building Value
Misc Improvements Value
Total Improvement Value

Assessed Land Value
   
Assessed Total Value



Addition Summary 
StoryTypeCodeArea
1.00 GARAGE FINISH GRF 357
1.00 OPEN PORCH FIN OPF 105
 
Other Improvements 
UnitsDescriptionItemCodeYear% BadValue
12x14 DIMENSIONS CONCRETE PATIO 1983 65
8x12 DIMENSIONS UTILITY FRAME 1983 85
 


Building Sketch
Photograph
Building Sketch Building Photo
(Click sketch for bigger image)