Cumberland County
Building Summary

Data last updated on: 1/26/2026     Ownership current as of: 1/20/2026     Tax Year: 2026
REID 0439172328000

PIN # 0439-17-2328

Location Address Property Description
3943 WATLING CT COUNTRY CLUB NORTH SEC 7C PT 2 LO:427 PL:0099-0006
   
Property Owner Owner's Mailing Address
DELAHAYE, VERONICA BADILLO;DELAHAYE, DANIEL BRETT
3943 WATLING CT
FAYETTEVILLE NC 28311
Parcel
Buildings
Misc Improvements
Land
Deeds
Documents
Notes
Sales
Sales Comparison
Photos
Building Location Address
3943 WATLING CT
Building Description
R1-SINGLE-FAMILY-RES
Card   of  1
Bldg Type R1-SINGLE-FAMILY-RES
Units 0
Living Area (SQFT) 2674
Number of Stories 1.00
Style 000002-STYLE
Foundation G-PIERS-W/CNTFWL
Frame CONSTANT
Exterior 11-BRICK-VENEER
Const Type
Heating M-07&S-02
Air Cond AC-Y
Plumbing Baths (Full):   2
Baths (Half):   1
Extra Fixtures:   3
Total Plumbing Fixtures:   11 
Bedrooms 4
Floor 11-CARPET-COMB
Roof Cover 03-COMP SHINGLE
Roof Type 02-GABLE
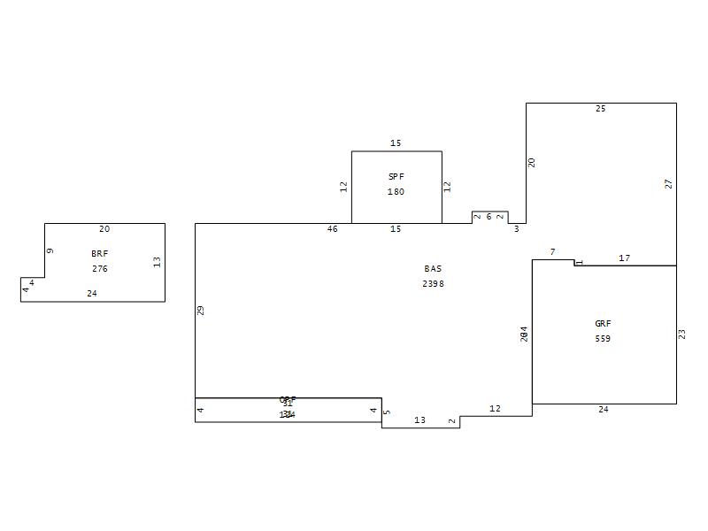
Main Body (SQFT) 2398
Year Built 2000
Additions 4
Effective Year 2000
Remodeled 0
Interior Adj.
Other Features
Building Total & Improvement Details

Grade 370 108%
Percentage Complete 100
Total Adjusted Replacement Cost New $335,268
Physical Depreciation (% Bad) A 21%
Depreciated Value $264,862
Economic Depreciation (% Bad) 0
Functional Depreciation (% Bad) 0
Total Depreciated Value $264,862
Market Area Factor 1.00
Building Value $264,862
Misc Improvements Value $2,989
Total Improvement Value $267,851

Assessed Land Value $41,250
   
Assessed Total Value $363,800



Addition Summary 
StoryTypeCodeArea
1.00 GARAGE FINISH GRF 559
1.00 OPEN PORCH FIN OPF 124
1.00 SCREEN PORCH F SPF 180
1.00 BONUS RM FINIS BRF 276
 
Other Improvements 
UnitsDescriptionItemCodeYear% BadValue
13x12 DIMENSIONS CONCRETE PATIO 2001 65 419
10X16 DIMENSIONS UTILITY FRAME 2008 50 2570
 


Building Sketch
Photograph
Building Sketch Building Photo
(Click sketch for bigger image)