Cumberland County
Building Summary

Data last updated on: 1/26/2026     Ownership current as of: 1/20/2026     Tax Year: 2026
REID 0439182458000

PIN # 0439-18-2458

Location Address Property Description
712 LARKSPUR DR COUNTRY CLUB NORTH LO:372 SE:7A PL:0085-0077
   
Property Owner Owner's Mailing Address
RIDENOUR, JONATHAN;RIDENOUR, DAZSHA N
712 LARKSPUR DR
FAYETTEVILLE NC 28311
Parcel
Buildings
Misc Improvements
Land
Deeds
Documents
Notes
Sales
Sales Comparison
Photos
Building Location Address
712 LARKSPUR DR
Building Description
R1-SINGLE-FAMILY-RES
Card   of  1
Bldg Type R1-SINGLE-FAMILY-RES
Units 0
Living Area (SQFT) 1868
Number of Stories 2.00
Style 000002-STYLE
Foundation G-PIERS-W/CNTFWL
Frame CONSTANT
Exterior 03-MAS/ABST/OLD-WOOD
Const Type
Heating M-07&S-02
Air Cond AC-Y
Plumbing Baths (Full):   2
Baths (Half):   1
Extra Fixtures:   2
Total Plumbing Fixtures:   10 
Bedrooms 3
Floor 11-CARPET-COMB
Roof Cover 03-COMP SHINGLE
Roof Type 02-GABLE
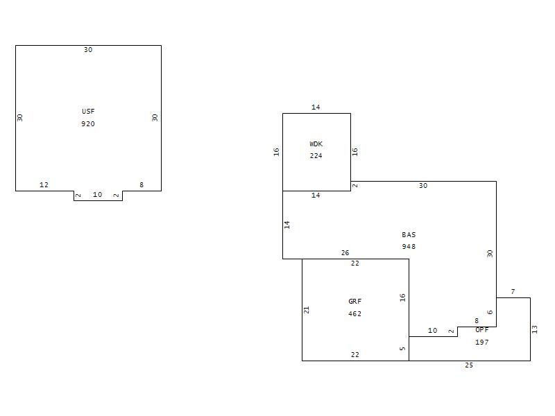
Main Body (SQFT) 948
Year Built 1995
Additions 4
Effective Year 1995
Remodeled 0
Interior Adj.
Other Features
Building Total & Improvement Details

Grade 370 108%
Percentage Complete 100
Total Adjusted Replacement Cost New $245,385
Physical Depreciation (% Bad) A 24%
Depreciated Value $186,493
Economic Depreciation (% Bad) 0
Functional Depreciation (% Bad) 0
Total Depreciated Value $186,493
Market Area Factor 1.00
Building Value $186,493
Misc Improvements Value $601
Total Improvement Value $187,094

Assessed Land Value $33,000
   
Assessed Total Value $294,100



Addition Summary 
StoryTypeCodeArea
1.00 OPEN PORCH FIN OPF 197
1.00 GARAGE FINISH GRF 462
1.00 WOOD DECK WDK 224
1.00 UPPER STY FIN USF 920
 
Other Improvements 
UnitsDescriptionItemCodeYear% BadValue
16x14 DIMENSIONS CONCRETE PATIO 1995 65 601
 


Building Sketch
Photograph
Building Sketch Building Photo
(Click sketch for bigger image)