Cumberland County
Building Summary

Data last updated on: 1/26/2026     Ownership current as of: 1/20/2026     Tax Year: 2026
REID 0439273583000

PIN # 0439-27-3583

Location Address Property Description
609 ROCKPORT DR COUNTRY CLUB NORTH LO:162 SE:05 PL:0057-0122
   
Property Owner Owner's Mailing Address
HERNANDEZ, EZEKIEL II;LOCKHART, ERICA
609 ROCKPORT DRIVE
FAYETTEVILLE NC 28311

Value subject to change, property assessment under review

Parcel
Buildings
Misc Improvements
Land
Deeds
Documents
Notes
Sales
Photos
Building Location Address
609 ROCKPORT DR
Building Description
R1-SINGLE-FAMILY-RES
Card   of  1
Bldg Type R1-SINGLE-FAMILY-RES
Units 0
Living Area (SQFT) 1848
Number of Stories 2.00
Style 000002-STYLE
Foundation G-PIERS-W/CNTFWL
Frame CONSTANT
Exterior 03-MAS/ABST/OLD-WOOD
Const Type
Heating M-07&S-01
Air Cond AC-Y
Plumbing Baths (Full):   2
Baths (Half):   1
Extra Fixtures:   1
Total Plumbing Fixtures:   9 
Bedrooms 3
Floor 12-CARPET
Roof Cover 03-COMP SHINGLE
Roof Type 02-GABLE
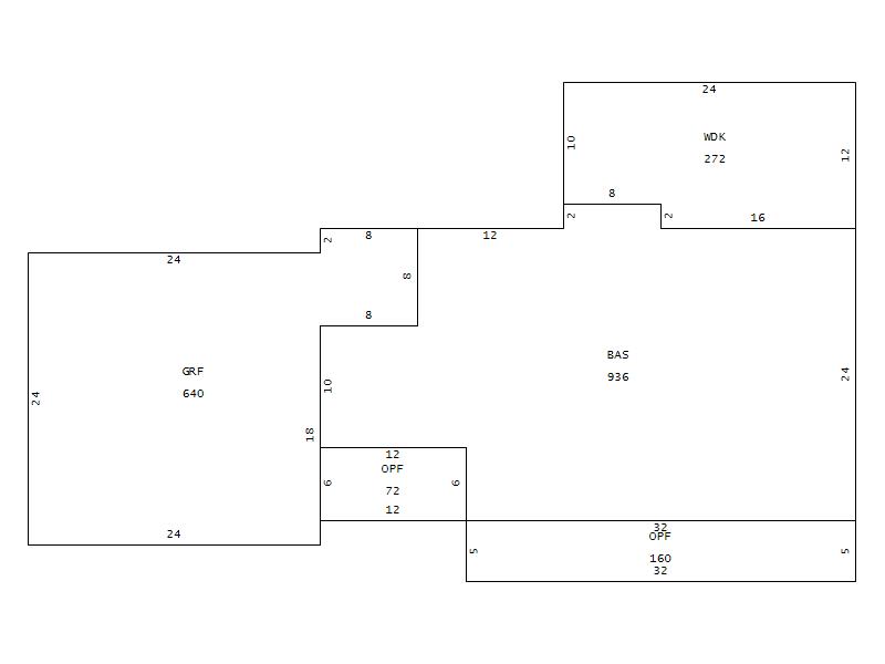
Main Body (SQFT) 936
Year Built 1986
Additions 6
Effective Year 1986
Remodeled 0
Interior Adj.
Other Features
Building Total & Improvement Details

Grade 370 108%
Percentage Complete 100
Total Adjusted Replacement Cost New
Physical Depreciation (% Bad) A 27%
Depreciated Value
Economic Depreciation (% Bad) 0
Functional Depreciation (% Bad) 0
Total Depreciated Value
Market Area Factor 1.00
Building Value
Misc Improvements Value
Total Improvement Value

Assessed Land Value
   
Assessed Total Value



Addition Summary 
StoryTypeCodeArea
1.00 GARAGE FINISH GRF 640
1.00 OPEN PORCH FIN OPF 72
1.00 OPEN PORCH FIN OPF 160
1.00 WOOD DECK WDK 272
1.00 UPPER STY FIN USF 768
1.00 UPPER STY FIN USF 144
 
Other Improvements 
 


Building Sketch
Photograph
Building Sketch Building Photo
(Click sketch for bigger image)