Cumberland County
Building Summary

Data last updated on: 11/14/2025     Ownership current as of: 11/5/2025     Tax Year: 2025
REID 0406162162000

PIN # 0406-16-2162

Location Address Property Description
6459 RANNOCK DR ARRAN HILLS LO:53 SE:14PT3 PL:0052-0003
   
Property Owner Owner's Mailing Address
MIRANDA, MARGARITA
6459 RANNOCK DR
FAYETTEVILLE NC 28304
Parcel
Buildings
Misc Improvements
Land
Deeds
Documents
Notes
Sales
Sales Comparison
Photos
Building Location Address
6459 RANNOCK DR
Building Description
R1-SINGLE-FAMILY-RES
Card   of  1
Bldg Type R1-SINGLE-FAMILY-RES
Units 0
Living Area (SQFT) 934
Number of Stories 1.00
Style 000002-STYLE
Foundation S-SLAB
Frame CONSTANT
Exterior 05-DELUX-WOOD-SIDING
Const Type
Heating M-07&S-01
Air Cond AC-Y
Plumbing Baths (Full):   2
Baths (Half):   0
Extra Fixtures:   0
Total Plumbing Fixtures:   6 
Bedrooms 3
Floor 12-CARPET
Roof Cover 03-COMP SHINGLE
Roof Type 02-GABLE
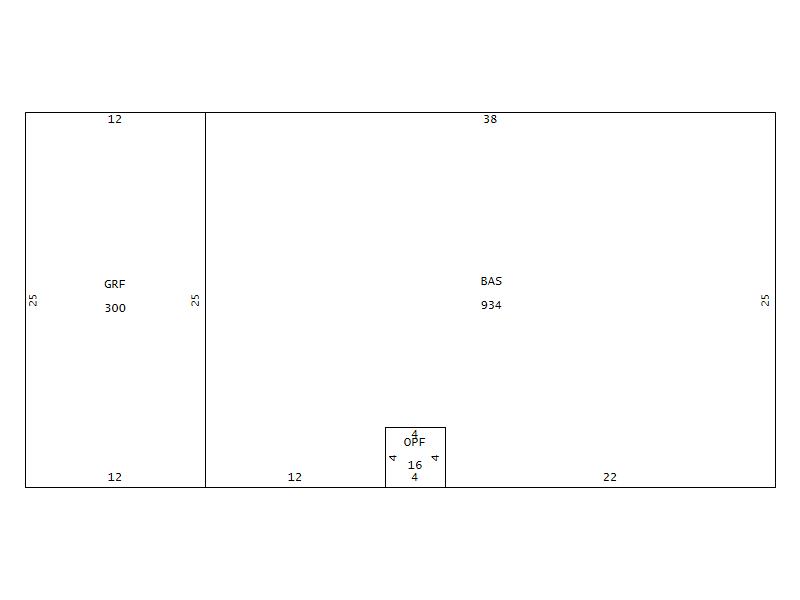
Main Body (SQFT) 934
Year Built 1982
Additions 2
Effective Year 1982
Remodeled 0
Interior Adj.
Other Features
Building Total & Improvement Details

Grade 350 100%
Percentage Complete 100
Total Adjusted Replacement Cost New $120,403
Physical Depreciation (% Bad) A 29%
Depreciated Value $85,486
Economic Depreciation (% Bad) 0
Functional Depreciation (% Bad) 0
Total Depreciated Value $85,486
Market Area Factor 1.00
Building Value $85,486
Misc Improvements Value $322
Total Improvement Value $85,808

Assessed Land Value $22,000
   
Assessed Total Value $179,300



Addition Summary 
StoryTypeCodeArea
1.00 GARAGE FINISH GRF 300
1.00 OPEN PORCH FIN OPF 16
 
Other Improvements 
UnitsDescriptionItemCodeYear% BadValue
12x10 DIMENSIONS CONCRETE PATIO 1983 65 322
 


Building Sketch
Photograph
Building Sketch Building Photo
(Click sketch for bigger image)