Cumberland County
Building Summary

Data last updated on: 1/25/2026     Ownership current as of: 1/20/2026     Tax Year: 2026
REID 0439953329000

PIN # 0439-95-3329

Location Address Property Description
304 ONTRA DR WOODCLIFT LO:02 SE:01 PL:0029-0071
   
Property Owner Owner's Mailing Address
VALLINAS, MANUEL E;BATISTA, MAYRA ELIZABETH COISCOU
304 ONTRA DR
FAYETTEVILLE NC 28311
Parcel
Buildings
Misc Improvements
Land
Deeds
Documents
Notes
Sales
Sales Comparison
Photos
Building Location Address
304 ONTRA DR
Building Description
R1-SINGLE-FAMILY-RES
Card   of  1
Bldg Type R1-SINGLE-FAMILY-RES
Units 0
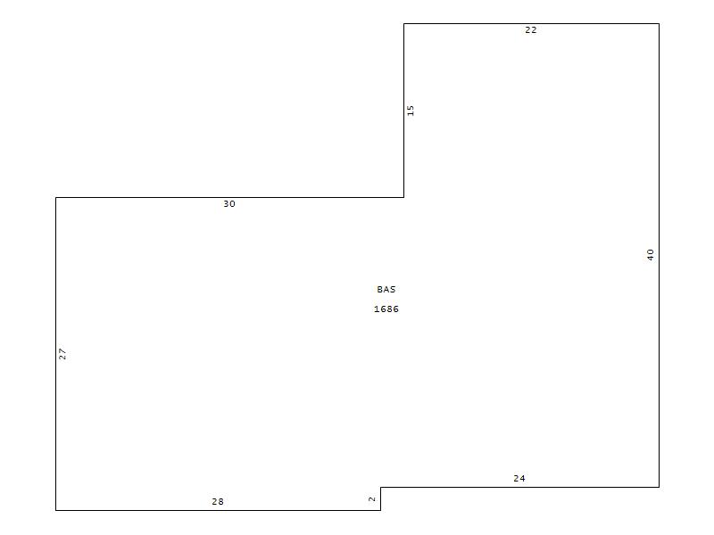
Living Area (SQFT) 1686
Number of Stories 1.00
Style 000002-STYLE
Foundation G-PIERS-W/CNTFWL
Frame CONSTANT
Exterior 11-BRICK-VENEER
Const Type
Heating M-07&S-01
Air Cond AC-Y
Plumbing Baths (Full):   2
Baths (Half):   0
Extra Fixtures:   0
Total Plumbing Fixtures:   6 
Bedrooms 3
Floor 11-CARPET-COMB
Roof Cover 03-COMP SHINGLE
Roof Type 02-GABLE
Main Body (SQFT) 1686
Year Built 1965
Additions 0
Effective Year 1978
Remodeled 0
Interior Adj.
Other Features
Building Total & Improvement Details

Grade 350 100%
Percentage Complete 100
Total Adjusted Replacement Cost New $184,946
Physical Depreciation (% Bad) A 31%
Depreciated Value $127,613
Economic Depreciation (% Bad) 0
Functional Depreciation (% Bad) 0
Total Depreciated Value $127,613
Market Area Factor 1.00
Building Value $127,613
Misc Improvements Value $261
Total Improvement Value $127,874

Assessed Land Value $28,000
   
Assessed Total Value $213,300



Addition Summary 
 
Other Improvements 
UnitsDescriptionItemCodeYear% BadValue
4x8 DIMENSIONS STOOP 1983 65 174
4x4 DIMENSIONS STOOP 1983 65 87
 


Building Sketch
Photograph
Building Sketch Building Photo
(Click sketch for bigger image)