Cumberland County
Building Summary

Data last updated on: 1/26/2026     Ownership current as of: 1/20/2026     Tax Year: 2026
REID 0443786984000

PIN # 0443-78-6984

Location Address Property Description
3265 BUTLER NURSERY RD JAMES R EVANS DIVISION LO:MAJ PT 2 SE:01 PL:0089-0152
   
Property Owner Owner's Mailing Address
CLABO, MICHAEL LOUIS;CLABO, JENNIFER BLAKE
3265 BUTLER NURSERY RD
FAYETTEVILLE NC 28306
Parcel
Buildings
Misc Improvements
Land
Deeds
Documents
Notes
Sales
Sales Comparison
Photos
Building Location Address
3265 BUTLER NURSERY RD
Building Description
R1-SINGLE-FAMILY-RES
Card   of  1
Bldg Type R1-SINGLE-FAMILY-RES
Units 0
Living Area (SQFT) 1674
Number of Stories 1.50
Style 000002-STYLE
Foundation G-PIERS-W/CNTFWL
Frame CONSTANT
Exterior 05-DELUX-WOOD-SIDING
Const Type
Heating M-07&S-01
Air Cond AC-Y
Plumbing Baths (Full):   2
Baths (Half):   0
Extra Fixtures:   0
Total Plumbing Fixtures:   6 
Bedrooms 2
Roof Cover 02-METAL ROOF
Roof Type 02-GABLE
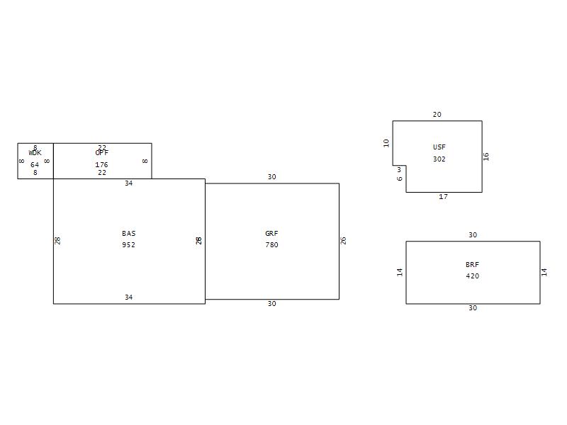
Main Body (SQFT) 952
Year Built 1994
Additions 5
Effective Year 1998
Remodeled 0
Interior Adj.
Other Features
Building Total & Improvement Details

Grade 350 100%
Percentage Complete 100
Total Adjusted Replacement Cost New $202,598
Physical Depreciation (% Bad) A 22%
Depreciated Value $158,026
Economic Depreciation (% Bad) 0
Functional Depreciation (% Bad) 0
Total Depreciated Value $158,026
Market Area Factor 1.00
Building Value $158,026
Misc Improvements Value $392
Total Improvement Value $158,418

Assessed Land Value $102,384
   
Assessed Total Value $368,500



Addition Summary 
StoryTypeCodeArea
1.00 OPEN PORCH FIN OPF 176
1.00 WOOD DECK WDK 64
1.00 GARAGE FINISH GRF 780
1.00 BONUS RM FINIS BRF 420
1.00 UPPER STY FIN USF 302
 
Other Improvements 
UnitsDescriptionItemCodeYear% BadValue
9x4 DIMENSIONS STOOP 1994 65 196
17x8 DIMENSIONS CONCRETE PATIO 1994 65 460
 


Building Sketch
Photograph
Building Sketch Building Photo
(Click sketch for bigger image)