Cumberland County
Building Summary

Data last updated on: 1/30/2026     Ownership current as of: 1/20/2026     Tax Year: 2026
REID 0444314262000

PIN # 0444-31-4262

Location Address Property Description
4871 DOC BENNETT RD ERNEST WOOD RECOMB LO:2 SE:01 PL:0138-0075
   
Property Owner Owner's Mailing Address
GARCIA, LATASHIA;MCCOY, ALTON JR
4871 DOC BENNETT RD
FAYETTEVILLE NC 28306
Parcel
Buildings
Misc Improvements
Land
Deeds
Documents
Notes
Sales
Sales Comparison
Photos
Building Location Address
4871 DOC BENNETT RD
Building Description
R1-SINGLE-FAMILY-RES
Card   of  1
Bldg Type R1-SINGLE-FAMILY-RES
Units 0
Living Area (SQFT) 2818
Number of Stories 1.75
Style 000002-STYLE
Foundation C-COMBO/SLAB/CSP
Frame CONSTANT
Exterior 11-BRICK-VENEER
Const Type
Heating M-07&S-01
Air Cond AC-Y
Plumbing Baths (Full):   3
Baths (Half):   0
Extra Fixtures:   1
Total Plumbing Fixtures:   10 
Bedrooms 3
Floor 11-CARPET-COMB
Roof Cover 03-COMP SHINGLE
Roof Type 02-GABLE
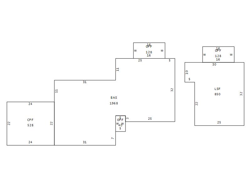
Main Body (SQFT) 1968
Year Built 1976
Additions 5
Effective Year 1976
Remodeled 0
Interior Adj.
Other Features
Building Total & Improvement Details

Grade 350 100%
Percentage Complete 100
Total Adjusted Replacement Cost New $320,406
Physical Depreciation (% Bad) A 32%
Depreciated Value $217,876
Economic Depreciation (% Bad) 0
Functional Depreciation (% Bad) 0
Total Depreciated Value $217,876
Market Area Factor 1.00
Building Value $217,876
Misc Improvements Value $3,527
Total Improvement Value $221,403

Assessed Land Value $89,597
   
Assessed Total Value $367,300



Addition Summary 
StoryTypeCodeArea
1.00 OPEN PORCH FIN OPF 128
1.00 CARPORT FINISH CPF 528
1.00 OPEN PORCH FIN OPF 40
1.00 LOWER STY FIN LSF 850
1.00 OPEN PORCH FIN OPF 128
 
Other Improvements 
UnitsDescriptionItemCodeYear% BadValue
8x16 DIMENSIONS CONCRETE PATIO 1983 65 344
16x10 DIMENSIONS UTILITY FRAME 2016 30 3599
12x10 DIMENSIONS UTILITY FRAME 2016 30 2699
 


Building Sketch
Photograph
Building Sketch Building Photo
(Click sketch for bigger image)