Cumberland County
Building Summary

Data last updated on: 3/3/2026     Ownership current as of: 3/2/2026     Tax Year: 2026
REID 0406238621000

PIN # 0406-23-8621

Location Address Property Description
6324 BRUSSELS CT ARRAN HILLS LO:48 SE:12 PL:0041-0073
   
Property Owner Owner's Mailing Address
SHAW, BRADLEY JR
6324 BRUSSELS CT
FAYETTEVILLE NC 28304

Value subject to change, property assessment under review

Parcel
Buildings
Misc Improvements
Land
Deeds
Documents
Notes
Sales
Photos
Building Location Address
6324 BRUSSELS CT
Building Description
R1-SINGLE-FAMILY-RES
Card   of  1
Bldg Type R1-SINGLE-FAMILY-RES
Units 0
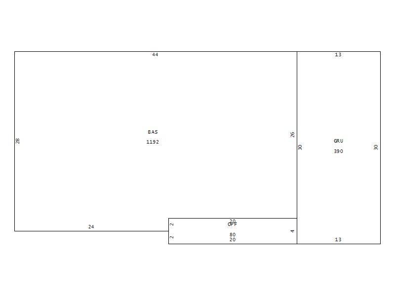
Living Area (SQFT) 1192
Number of Stories 1.00
Style 000002-STYLE
Foundation G-PIERS-W/CNTFWL
Frame CONSTANT
Exterior 12-BRICK/WOOD
Const Type
Heating M-07&S-01
Air Cond AC-Y
Plumbing Baths (Full):   1
Baths (Half):   1
Extra Fixtures:   0
Total Plumbing Fixtures:   5 
Bedrooms 3
Floor 11-CARPET-COMB
Roof Cover 03-COMP SHINGLE
Roof Type 02-GABLE
Main Body (SQFT) 1192
Year Built 1976
Additions 2
Effective Year 1976
Remodeled 0
Interior Adj.
Other Features
Building Total & Improvement Details

Grade 350 100%
Percentage Complete 100
Total Adjusted Replacement Cost New
Physical Depreciation (% Bad) A 32%
Depreciated Value
Economic Depreciation (% Bad) 0
Functional Depreciation (% Bad) 0
Total Depreciated Value
Market Area Factor 1.00
Building Value
Misc Improvements Value
Total Improvement Value

Assessed Land Value
   
Assessed Total Value



Addition Summary 
StoryTypeCodeArea
1.00 OPEN PORCH FIN OPF 80
1.00 GARAGE UNFIN GRU 390
 
Other Improvements 
UnitsDescriptionItemCodeYear% BadValue
10x10 DIMENSIONS UTILITY FRAME 1991 65
12x12 DIMENSIONS CONCRETE PATIO 1983 65
 


Building Sketch
Photograph
Building Sketch Building Photo
(Click sketch for bigger image)