Cumberland County
Building Summary

Data last updated on: 11/14/2025     Ownership current as of: 11/5/2025     Tax Year: 2025
REID 0406251566000

PIN # 0406-25-1566

Location Address Property Description
1516 DONCASTER DR ARRAN HILLS LO:1 SE:08 BL:R PL:0034-0027
   
Property Owner Owner's Mailing Address
TERRELL, JAQUAN;TERRELL, ZULEYMA
1516 DONCASTER DR
FAYETTEVILLE NC 28304
Parcel
Buildings
Misc Improvements
Land
Deeds
Documents
Notes
Sales
Sales Comparison
Photos
Building Location Address
1516 DONCASTER DR
Building Description
R1-SINGLE-FAMILY-RES
Card   of  1
Bldg Type R1-SINGLE-FAMILY-RES
Units 0
Living Area (SQFT) 1332
Number of Stories 1.00
Style 000002-STYLE
Foundation S-SLAB
Frame CONSTANT
Exterior 04-VINYL-SIDING
Const Type
Heating M-07&S-01
Air Cond AC-Y
Plumbing Baths (Full):   2
Baths (Half):   0
Extra Fixtures:   0
Total Plumbing Fixtures:   6 
Bedrooms 3
Floor 11-CARPET-COMB
Roof Cover 03-COMP SHINGLE
Roof Type 02-GABLE
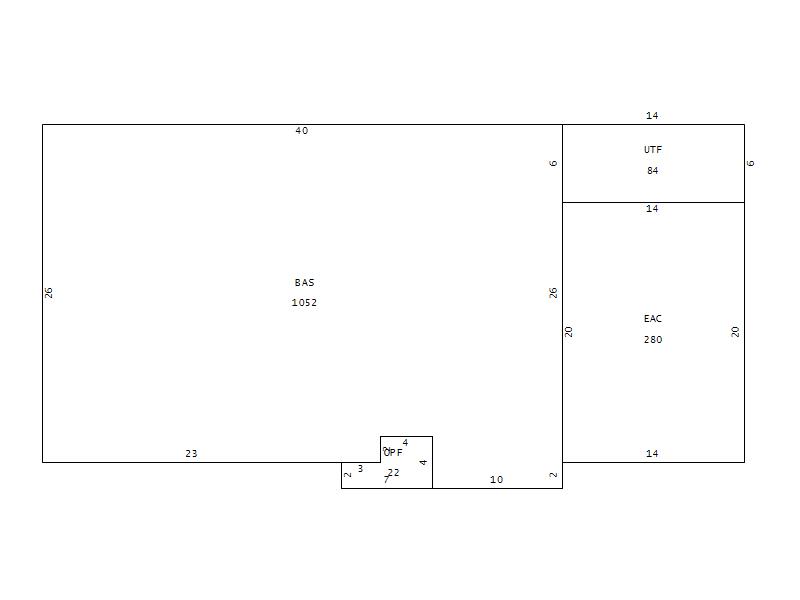
Main Body (SQFT) 1052
Year Built 1980
Additions 3
Effective Year 1980
Remodeled 0
Interior Adj.
Other Features
Building Total & Improvement Details

Grade 350 100%
Percentage Complete 100
Total Adjusted Replacement Cost New $140,022
Physical Depreciation (% Bad) A 30%
Depreciated Value $98,015
Economic Depreciation (% Bad) 0
Functional Depreciation (% Bad) 0
Total Depreciated Value $98,015
Market Area Factor 1.00
Building Value $98,015
Misc Improvements Value $322
Total Improvement Value $98,337

Assessed Land Value $22,000
   
Assessed Total Value $200,000



Addition Summary 
StoryTypeCodeArea
1.00 OPEN PORCH FIN OPF 22
1.00 ENCL AREA AVER EAC 280
1.00 UTILITY FIN UTF 84
 
Other Improvements 
UnitsDescriptionItemCodeYear% BadValue
10x12 DIMENSIONS CONCRETE PATIO 1980 65 322
 


Building Sketch
Photograph
Building Sketch Building Photo
(Click sketch for bigger image)