Cumberland County
Building Summary

Data last updated on: 4/20/2026     Ownership current as of: 4/6/2026     Tax Year: 2026
REID 0406253678000

PIN # 0406-25-3678

Location Address Property Description
1513 DONCASTER DR ARRAN HILLS LO:14 SE:08 BL:S PL:0034-0027
   
Property Owner Owner's Mailing Address
TERPAK, RONALD S
1513 DONCASTER DR
FAYETTEVILLE NC 28304
Parcel
Buildings
Misc Improvements
Land
Deeds
Documents
Notes
Sales
Sales Comparison
Photos
Building Location Address
1513 DONCASTER DR
Building Description
R1-SINGLE-FAMILY-RES
Card   of  1
Bldg Type R1-SINGLE-FAMILY-RES
Units 0
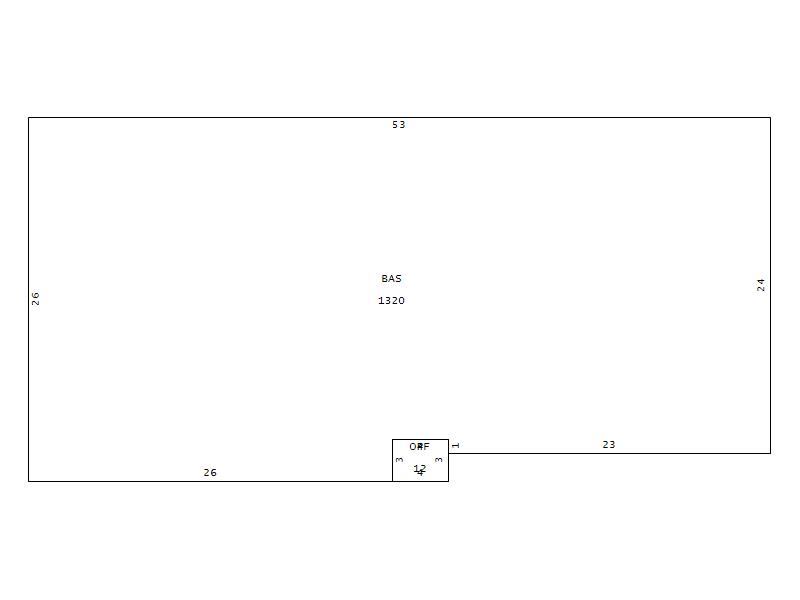
Living Area (SQFT) 1320
Number of Stories 1.00
Style 000002-STYLE
Foundation S-SLAB
Frame CONSTANT
Exterior 03-MAS/ABST/OLD-WOOD
Const Type
Heating M-07&S-01
Air Cond AC-Y
Plumbing Baths (Full):   2
Baths (Half):   0
Extra Fixtures:   0
Total Plumbing Fixtures:   6 
Bedrooms 3
Floor 12-CARPET
Roof Cover 03-COMP SHINGLE
Roof Type 02-GABLE
Main Body (SQFT) 1320
Year Built 1980
Additions 1
Effective Year 1985
Remodeled 0
Interior Adj.
Other Features
Building Total & Improvement Details

Grade 350 100%
Percentage Complete 100
Total Adjusted Replacement Cost New $141,216
Physical Depreciation (% Bad) A 28%
Depreciated Value $101,676
Economic Depreciation (% Bad) 0
Functional Depreciation (% Bad) 0
Total Depreciated Value $101,676
Market Area Factor 1.00
Building Value $101,676
Misc Improvements Value $775
Total Improvement Value $102,451

Assessed Land Value $22,000
   
Assessed Total Value $195,900



Addition Summary 
StoryTypeCodeArea
1.00 OPEN PORCH FIN OPF 12
 
Other Improvements 
UnitsDescriptionItemCodeYear% BadValue
14x14 DIMENSIONS CONCRETE PATIO 1983 65 526
8X10 DIMENSIONS UTILITY METAL 1983 65 141
8X10 DIMENSIONS SHELTER 1983 65 108
 


Building Sketch
Photograph
Building Sketch Building Photo
(Click sketch for bigger image)