Cumberland County
Building Summary

Data last updated on: 1/25/2026     Ownership current as of: 1/20/2026     Tax Year: 2026
REID 0449039779000

PIN # 0449-03-9779

Location Address Property Description
3650 FLORIDA DR EXT WOODCLIFT LO:42 SE:05 PL:0034-0077
   
Property Owner Owner's Mailing Address
AUCENA, RONEL;AUCENA, BEA LORENA
3650 FLORIDA DR EXT
FAYETTEVILLE NC 28311
Parcel
Buildings
Misc Improvements
Land
Deeds
Documents
Notes
Sales
Sales Comparison
Photos
Building Location Address
3650 FLORIDA DR EXT
Building Description
R1-SINGLE-FAMILY-RES
Card   of  1
Bldg Type R1-SINGLE-FAMILY-RES
Units 0
Living Area (SQFT) 1625
Number of Stories 1.00
Style 000002-STYLE
Foundation C-COMBO/SLAB/CSP
Frame CONSTANT
Exterior 12-BRICK/WOOD
Const Type
Heating M-07&S-01
Air Cond AC-Y
Plumbing Baths (Full):   2
Baths (Half):   0
Extra Fixtures:   0
Total Plumbing Fixtures:   6 
Bedrooms 3
Floor 11-CARPET-COMB
Roof Cover 03-COMP SHINGLE
Roof Type 02-GABLE
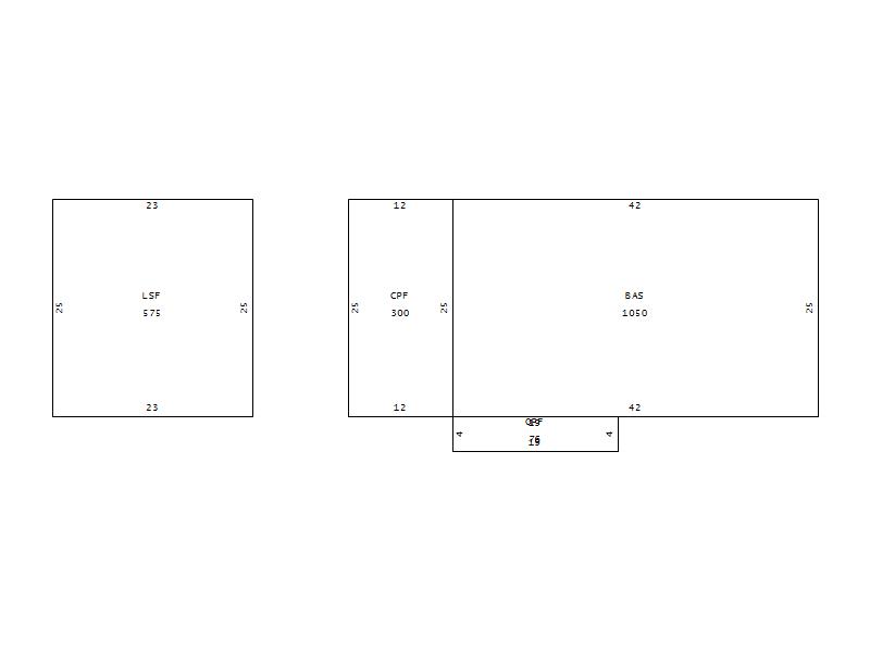
Main Body (SQFT) 1050
Year Built 1973
Additions 3
Effective Year 1973
Remodeled 0
Interior Adj.
Other Features
Building Total & Improvement Details

Grade 350 100%
Percentage Complete 100
Total Adjusted Replacement Cost New $183,709
Physical Depreciation (% Bad) A 33%
Depreciated Value $123,085
Economic Depreciation (% Bad) 0
Functional Depreciation (% Bad) 0
Total Depreciated Value $123,085
Market Area Factor 1.00
Building Value $123,085
Misc Improvements Value $829
Total Improvement Value $123,914

Assessed Land Value $28,000
   
Assessed Total Value $193,800



Addition Summary 
StoryTypeCodeArea
1.00 CARPORT FINISH CPF 300
1.00 OPEN PORCH FIN OPF 76
1.00 LOWER STY FIN LSF 575
 
Other Improvements 
UnitsDescriptionItemCodeYear% BadValue
4x5 DIMENSIONS STOOP 1983 65 109
8x8 DIMENSIONS UTILITY FRAME 1992 65 720
 


Building Sketch
Photograph
Building Sketch Building Photo
(Click sketch for bigger image)