Cumberland County
Building Summary

Data last updated on: 1/25/2026     Ownership current as of: 1/20/2026     Tax Year: 2026
REID 0449046971000

PIN # 0449-04-6971

Location Address Property Description
731 BUENA VISTA DR WOODCLIFT LO:10 SE:05 PL:0034-0077
   
Property Owner Owner's Mailing Address
SALGADO, NATALIE
731 BUENA VISTA DRIVE
FAYETTEVILLE NC 28311
Parcel
Buildings
Misc Improvements
Land
Deeds
Documents
Notes
Sales
Sales Comparison
Photos
Building Location Address
731 BUENA VISTA DR
Building Description
R1-SINGLE-FAMILY-RES
Card   of  1
Bldg Type R1-SINGLE-FAMILY-RES
Units 0
Living Area (SQFT) 1436
Number of Stories 1.00
Style 000002-STYLE
Foundation G-PIERS-W/CNTFWL
Frame CONSTANT
Exterior 12-BRICK/WOOD
Const Type
Heating M-07&S-01
Air Cond AC-Y
Plumbing Baths (Full):   2
Baths (Half):   0
Extra Fixtures:   0
Total Plumbing Fixtures:   6 
Bedrooms 3
Floor 12-CARPET
Roof Cover 03-COMP SHINGLE
Roof Type 02-GABLE
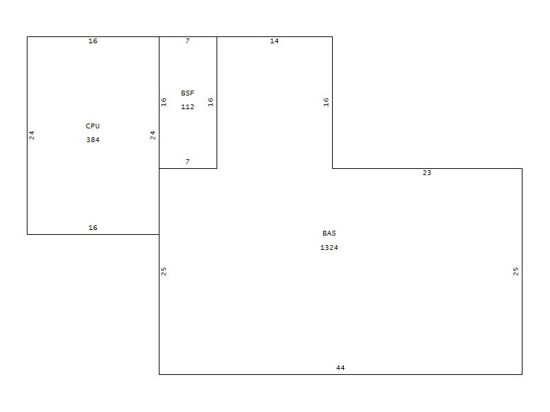
Main Body (SQFT) 1324
Year Built 1968
Additions 2
Effective Year 1982
Remodeled 0
Interior Adj.
Other Features
Building Total & Improvement Details

Grade 350 100%
Percentage Complete 100
Total Adjusted Replacement Cost New $163,671
Physical Depreciation (% Bad) A 29%
Depreciated Value $116,206
Economic Depreciation (% Bad) 0
Functional Depreciation (% Bad) 0
Total Depreciated Value $116,206
Market Area Factor 1.00
Building Value $116,206
Misc Improvements Value $853
Total Improvement Value $117,059

Assessed Land Value $28,000
   
Assessed Total Value $197,100



Addition Summary 
StoryTypeCodeArea
1.00 BASE SEMI FIN BSF 112
1.00 CARPORT UNFIN CPU 384
 
Other Improvements 
UnitsDescriptionItemCodeYear% BadValue
4x4 DIMENSIONS STOOP 1983 65 87
4x10 DIMENSIONS STOOP 1983 65 218
12X17 DIMENSIONS CONCRETE PATIO 2001 65 548
 


Building Sketch
Photograph
Building Sketch Building Photo
(Click sketch for bigger image)