Cumberland County
Building Summary

Data last updated on: 1/25/2026     Ownership current as of: 1/20/2026     Tax Year: 2026
REID 0449049142000

PIN # 0449-04-9142

Location Address Property Description
3709 FLORIDA DR EXT WOODCLIFT LO:35 SE:05 PL:0034-0077
   
Property Owner Owner's Mailing Address
SARGENT-HARFORD, JOSIAH WALKER;SARGENT-HARFORD, BRIANNA CHRISTINE
3709 FLORIDA DR EXT
FAYETTEVILLE NC 28311
Parcel
Buildings
Misc Improvements
Land
Deeds
Documents
Notes
Sales
Sales Comparison
Photos
Building Location Address
3709 FLORIDA DR EXT
Building Description
R1-SINGLE-FAMILY-RES
Card   of  1
Bldg Type R1-SINGLE-FAMILY-RES
Units 0
Living Area (SQFT) 1647
Number of Stories 1.00
Style 000002-STYLE
Foundation G-PIERS-W/CNTFWL
Frame CONSTANT
Exterior 12-BRICK/WOOD
Const Type
Heating M-07&S-01
Air Cond AC-Y
Plumbing Baths (Full):   2
Baths (Half):   0
Extra Fixtures:   0
Total Plumbing Fixtures:   6 
Bedrooms 4
Floor 11-CARPET-COMB
Roof Cover 03-COMP SHINGLE
Roof Type 02-GABLE
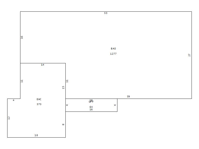
Main Body (SQFT) 1277
Year Built 1973
Additions 2
Effective Year 1985
Remodeled 0
Interior Adj.
Other Features
Building Total & Improvement Details

Grade 350 100%
Percentage Complete 100
Total Adjusted Replacement Cost New $168,699
Physical Depreciation (% Bad) A 28%
Depreciated Value $121,463
Economic Depreciation (% Bad) 0
Functional Depreciation (% Bad) 0
Total Depreciated Value $121,463
Market Area Factor 1.00
Building Value $121,463
Misc Improvements Value $1,009
Total Improvement Value $122,472

Assessed Land Value $28,000
   
Assessed Total Value $218,200



Addition Summary 
StoryTypeCodeArea
1.00 ENCL AREA AVER EAC 370
1.00 OPEN PORCH FIN OPF 64
 
Other Improvements 
UnitsDescriptionItemCodeYear% BadValue
4x5 DIMENSIONS STOOP 1983 65 109
8x10 DIMENSIONS UTILITY FRAME 1990 65 900
 


Building Sketch
Photograph
Building Sketch Building Photo
(Click sketch for bigger image)