Cumberland County
Building Summary

Data last updated on: 1/7/2026     Ownership current as of: 1/7/2026     Tax Year: 2026
REID 0450055160000

PIN # 0450-05-5160

Location Address Property Description
4216 TRANQUILITY RD HALL & MCQUEEN LD PL:0060-0119
   
Property Owner Owner's Mailing Address
BARTLETT, ORIN;BARTLETT, KAYLA
4216 TRANQUILITY RD
FAYETTEVILLE NC 28306

Value subject to change, property assessment under review

Parcel
Buildings
Misc Improvements
Land
Deeds
Documents
Notes
Sales
Photos
Building Location Address
4216 TRANQUILITY RD
Building Description
R1-SINGLE-FAMILY-RES
Card   of  1
Bldg Type R1-SINGLE-FAMILY-RES
Units 0
Living Area (SQFT) 1676
Number of Stories 2.00
Style 000002-STYLE
Foundation G-PIERS-W/CNTFWL
Frame CONSTANT
Exterior 05-DELUX-WOOD-SIDING
Const Type
Heating M-07&S-01
Air Cond AC-Y
Plumbing Baths (Full):   2
Baths (Half):   1
Extra Fixtures:   0
Total Plumbing Fixtures:   8 
Bedrooms 3
Floor 12-CARPET
Roof Cover 03-COMP SHINGLE
Roof Type 02-GABLE
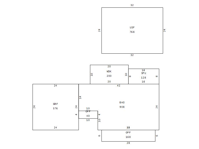
Main Body (SQFT) 908
Year Built 1987
Additions 6
Effective Year 1987
Remodeled 0
Interior Adj.
Other Features
Building Total & Improvement Details

Grade 350 100%
Percentage Complete 100
Total Adjusted Replacement Cost New
Physical Depreciation (% Bad) A 27%
Depreciated Value
Economic Depreciation (% Bad) 0
Functional Depreciation (% Bad) 0
Total Depreciated Value
Market Area Factor 1.00
Building Value
Misc Improvements Value
Total Improvement Value

Assessed Land Value
   
Assessed Total Value



Addition Summary 
StoryTypeCodeArea
1.00 SCREEN PORCH U SPU 128
1.00 WOOD DECK WDK 200
1.00 GARAGE FINISH GRF 576
1.00 OPEN PORCH FIN OPF 40
1.00 OPEN PORCH FIN OPF 168
1.00 UPPER STY FIN USF 768
 
Other Improvements 
UnitsDescriptionItemCodeYear% BadValue
8x10 DIMENSIONS UTILITY METAL 1998 65
 


Building Sketch
Photograph
Building Sketch Building Photo
(Click sketch for bigger image)