Cumberland County
Building Summary

Data last updated on: 1/7/2026     Ownership current as of: 1/7/2026     Tax Year: 2026
REID 0452335100000

PIN # 0452-33-5100

Location Address Property Description
5717 BUTLER NURSERY RD DRAKE LD PL:0074-0074
   
Property Owner Owner's Mailing Address
BARTOS, VINCENT ANDREW;BARTOS, PAIGE
5717 BUTLER NURSERY RD
FAYETTEVILLE NC 28306
Parcel
Buildings
Misc Improvements
Land
Deeds
Documents
Notes
Sales
Sales Comparison
Photos
Building Location Address
5717 BUTLER NURSERY RD
Building Description
R1-SINGLE-FAMILY-RES
Card   of  1
Bldg Type R1-SINGLE-FAMILY-RES
Units 0
Living Area (SQFT) 2308
Number of Stories 1.00
Style 000002-STYLE
Foundation G-PIERS-W/CNTFWL
Frame CONSTANT
Exterior 11-BRICK-VENEER
Const Type
Heating M-07&S-02
Air Cond AC-Y
Plumbing Baths (Full):   2
Baths (Half):   1
Extra Fixtures:   0
Total Plumbing Fixtures:   8 
Bedrooms 3
Floor 11-CARPET-COMB
Roof Cover 03-COMP SHINGLE
Roof Type 02-GABLE
Main Body (SQFT) 2308
Year Built 1990
Additions 6
Effective Year 1990
Remodeled 0
Interior Adj.
Other Features
Building Total & Improvement Details

Grade 350 100%
Percentage Complete 100
Total Adjusted Replacement Cost New $296,270
Physical Depreciation (% Bad) A 25%
Depreciated Value $222,202
Economic Depreciation (% Bad) 0
Functional Depreciation (% Bad) 0
Total Depreciated Value $222,202
Market Area Factor 1.00
Building Value $222,202
Misc Improvements Value $22,860
Total Improvement Value $245,062

Assessed Land Value $102,391
   
Assessed Total Value $489,400



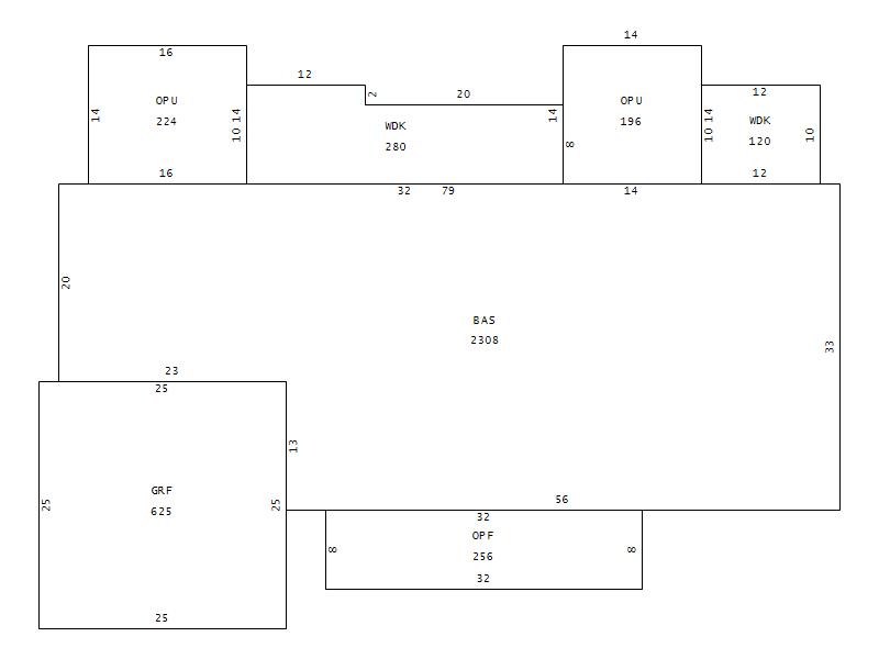
Addition Summary 
StoryTypeCodeArea
1.00 WOOD DECK WDK 120
1.00 OPEN POR UNFIN OPU 196
1.00 WOOD DECK WDK 280
1.00 OPEN POR UNFIN OPU 224
1.00 GARAGE FINISH GRF 625
1.00 OPEN PORCH FIN OPF 256
 
Other Improvements 
UnitsDescriptionItemCodeYear% BadValue
40x30 DIMENSIONS GARAGE METAL FINISHED 2001 44 13517
24x16 DIMENSIONS GARAGE FRAME UNFINISHED 2000 45 7094
12x40 DIMENSIONS SHELTER 2002 75 721
 


Building Sketch
Photograph
Building Sketch Building Photo
(Click sketch for bigger image)