Cumberland County
Building Summary

Data last updated on: 11/14/2025     Ownership current as of: 11/5/2025     Tax Year: 2025
REID 0406341027000

PIN # 0406-34-1027

Location Address Property Description
6347 ROCKFORD DR ARRAN HILLS LO:40 SE:09 PL:0038-0048
   
Property Owner Owner's Mailing Address
CANALES, EARL;CANALES, SITERRIA
6347 ROCKFORD DR
FAYETTEVILLE NC 28304
Parcel
Buildings
Misc Improvements
Land
Deeds
Documents
Notes
Sales
Sales Comparison
Photos
Building Location Address
6347 ROCKFORD DR
Building Description
R1-SINGLE-FAMILY-RES
Card   of  1
Bldg Type R1-SINGLE-FAMILY-RES
Units 0
Living Area (SQFT) 1528
Number of Stories 1.00
Style 000002-STYLE
Foundation G-PIERS-W/CNTFWL
Frame CONSTANT
Exterior 11-BRICK-VENEER
Const Type
Heating M-07&S-01
Air Cond AC-Y
Plumbing Baths (Full):   2
Baths (Half):   0
Extra Fixtures:   1
Total Plumbing Fixtures:   7 
Bedrooms 3
Floor 12-CARPET
Roof Cover 03-COMP SHINGLE
Roof Type 02-GABLE
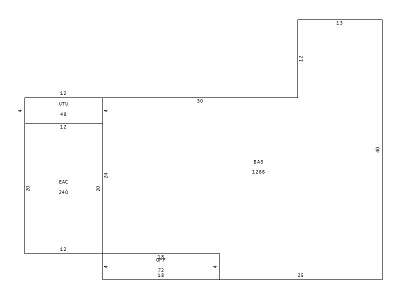
Main Body (SQFT) 1288
Year Built 1973
Additions 3
Effective Year 1973
Remodeled 0
Interior Adj.
Other Features
Building Total & Improvement Details

Grade 350 100%
Percentage Complete 100
Total Adjusted Replacement Cost New $170,219
Physical Depreciation (% Bad) A 33%
Depreciated Value $114,047
Economic Depreciation (% Bad) 0
Functional Depreciation (% Bad) 0
Total Depreciated Value $114,047
Market Area Factor 1.00
Building Value $114,047
Misc Improvements Value $879
Total Improvement Value $114,926

Assessed Land Value $22,000
   
Assessed Total Value $205,200



Addition Summary 
StoryTypeCodeArea
1.00 OPEN PORCH FIN OPF 72
1.00 ENCL AREA AVER EAC 240
1.00 UTILITY UNFIN UTU 48
 
Other Improvements 
UnitsDescriptionItemCodeYear% BadValue
8x10 DIMENSIONS UTILITY METAL 1985 75 129
10x20 DIMENSIONS CANOPY OVER PATIO 1985 75 750
 


Building Sketch
Photograph
Building Sketch Building Photo
(Click sketch for bigger image)