Cumberland County
Building Summary

Data last updated on: 1/30/2026     Ownership current as of: 1/20/2026     Tax Year: 2026
REID 9487397566000

PIN # 9487-39-7566

Location Address Property Description
7340 REEDY CREEK DR MIDDLE CREEK REV LTS 213-216 LO:215 SE:05 PL:0062-0021
   
Property Owner Owner's Mailing Address
EDINGTON, ESMOND
7340 REEDY CREEK DR
FAYETTEVILLE NC 28314
Parcel
Buildings
Misc Improvements
Land
Deeds
Documents
Notes
Sales
Sales Comparison
Photos
Building Location Address
7340 REEDY CREEK DR
Building Description
R1-SINGLE-FAMILY-RES
Card   of  1
Bldg Type R1-SINGLE-FAMILY-RES
Units 0
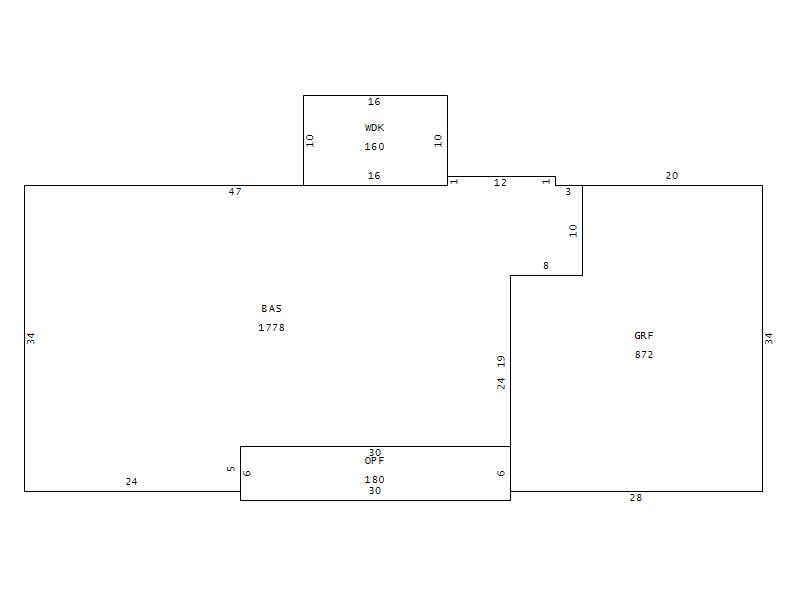
Living Area (SQFT) 1778
Number of Stories 1.00
Style 000002-STYLE
Foundation S-SLAB
Frame CONSTANT
Exterior 12-BRICK/WOOD
Const Type
Heating M-07&S-01
Air Cond AC-Y
Plumbing Baths (Full):   2
Baths (Half):   0
Extra Fixtures:   0
Total Plumbing Fixtures:   6 
Bedrooms 3
Floor 11-CARPET-COMB
Roof Cover 03-COMP SHINGLE
Roof Type 02-GABLE
Main Body (SQFT) 1778
Year Built 1987
Additions 3
Effective Year 1995
Remodeled 0
Interior Adj.
Other Features
Building Total & Improvement Details

Grade 350 100%
Percentage Complete 100
Total Adjusted Replacement Cost New $230,910
Physical Depreciation (% Bad) A 24%
Depreciated Value $175,492
Economic Depreciation (% Bad) 0
Functional Depreciation (% Bad) 0
Total Depreciated Value $175,492
Market Area Factor 1.00
Building Value $175,492
Misc Improvements Value $315
Total Improvement Value $175,807

Assessed Land Value $35,000
   
Assessed Total Value $273,400



Addition Summary 
StoryTypeCodeArea
1.00 GARAGE FINISH GRF 872
1.00 OPEN PORCH FIN OPF 180
1.00 WOOD DECK WDK 160
 
Other Improvements 
UnitsDescriptionItemCodeYear% BadValue
4x4 DIMENSIONS STOOP 1987 65 87
8x10 DIMENSIONS UTILITY METAL 1996 65 228
 


Building Sketch
Photograph
Building Sketch Building Photo
(Click sketch for bigger image)